2634 Sq Ft
4 Bedrooms
3.5 Bathrooms
2 Garages
Available :
Apr 2016
$700,000
1188 Bird Ave Birmingham
Mi,48009
1188 Bird Ave Birmingham, Mi 48009
$ 700,000 Virtual Tour Exterior Interior Floor Plan
Description...
New Home in Birmingham Mi at 1188 Bird Ave 48009
Birmingham, MI - 3 story colonial - Sold
1188 Bird , Birmingham ,
$700,000
- · This new home is under construction and will be
completed in April 2016.
- · Pictures in this listing are of a
similar home. Builder does have finished
homes for you to view.
- · Once home is purchased, Buyer may customize home to fit their family needs and wants. Buyer may also make selection or choice that may increase or reduce the price of the stated home.
· Some Standard Features
· Custom wood front door 42” wide
x 8’ High
· 2 Furnaces and A/C units for even
temperatures on each floor of home.
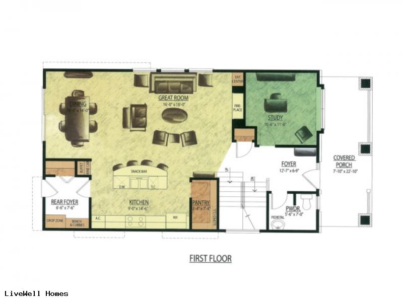
· 9’ ceiling on first floor with 8’ high doors
· Complete wood floor on the first floor
· A
8’ X 3’ island table in kitchen
for quick meals and entertaining
· A custom Rear Foyer with cubbies,
bench and drop zone.
· Custom maple cabinet with 42” uppers
· Granite tops throughout the home.
· 8’ 6” high partial finish basement
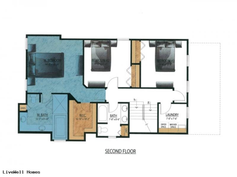
· A second floor laundry because that’s
where your cloths are located for easy laundry days.
To learn more about our builder and
other new homes for sale in Birmingham, visit our website @ http://livewellcustomhomes.com/ OR
You tube
http://www.youtube.com/watch?v=48gTs_-B1ys
- ADDRESS: 1188 Bird Ave Birmingham, Mi 48009
- SCHOOL: Birmingham
- APPLIANCES: Allowance
- FIREPLACE: 42" Gas Fireplace
- AC: 2 A/C Units and 2 heating systems
- PORCH: Large sitting front porch


